昭和町第2団地
2024年2月22日(木)| 所在地 | 〒882-0034 延岡市昭和町2丁目2201 |
|---|---|
| 棟数 | 5 |
| 学校区 | 岡富小 岡富中 |
| 建築年度 | H元年~H3 |
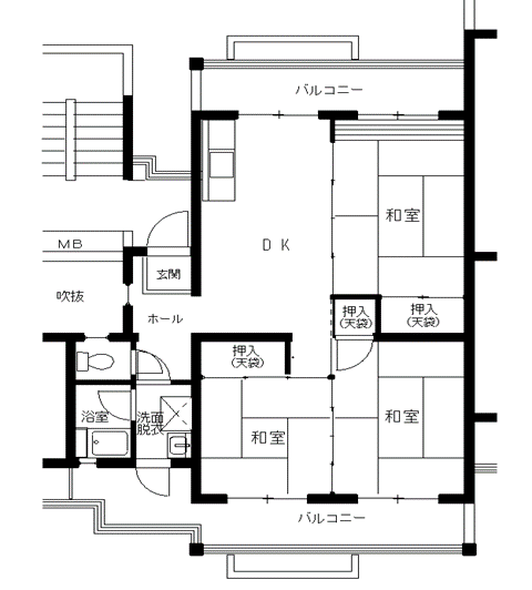
| 間取り | 2LDK、3DK |
| ガス | 都市ガス |
| 給湯 | 給湯器、バランス釜 |
| 構造 | 中層耐火(鉄筋コンクリート)5階建 |
| 備考 | 受付窓口:㈱田中屋 ☎0982-33-3037 |
| 所在地 | 〒882-0034 延岡市昭和町2丁目2201 |
|---|---|
| 棟数 | 5 |
| 学校区 | 岡富小 岡富中 |
| 建築年度 | H元年~H3 |
| 間取り | 2LDK、3DK |
| ガス | 都市ガス |
| 給湯 | 給湯器、バランス釜 |
| 構造 | 中層耐火(鉄筋コンクリート)5階建 |
| 備考 | 受付窓口:㈱田中屋 ☎0982-33-3037 |