西階はぎ団地 4-2-5棟74号
2024年6月28日(金)| 所在地 | 〒882-0802 延岡市野地町6丁目5315 |
|---|---|
| 棟数 | 7 |
| 学校区 | 南方小 西階中 |
| 建築年度 | H4 |
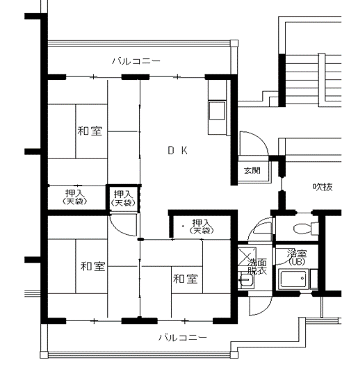
| 間取り | 3DK |
| ガス | プロパンガス |
| 給湯 | バランス釜 |
| 構造 | 中層耐火(鉄筋コンクリート)5階建 |
| 備考 | 階層:5階 家賃:17,400円~25,900円 駐車料金:1,200円 60歳以上単身入居可 受付窓口:㈱日中商事 ☎0982-20-0888 |
| 所在地 | 〒882-0802 延岡市野地町6丁目5315 |
|---|---|
| 棟数 | 7 |
| 学校区 | 南方小 西階中 |
| 建築年度 | H4 |
| 間取り | 3DK |
| ガス | プロパンガス |
| 給湯 | バランス釜 |
| 構造 | 中層耐火(鉄筋コンクリート)5階建 |
| 備考 | 階層:5階 家賃:17,400円~25,900円 駐車料金:1,200円 60歳以上単身入居可 受付窓口:㈱日中商事 ☎0982-20-0888 |