日向市営|又江野住宅(木造・単身のみ)
2024年5月14日(火)| 所在地 | 〒883-0102 日向市東郷町山陰丙1525番地1 |
|---|---|
| 棟数 | 1棟 |
| 学校区 | |
| 建築年度 | H14 |
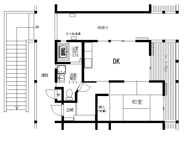
| 間取り | 1LDK |
| ガス | プロパンガス |
| 給湯 | 3点給湯 |
| 構造 | 木造平屋建 |
| 備考 | 単身のみ住宅 窓口:不動産パートナー 0982-60-2360 |
| 所在地 | 〒883-0102 日向市東郷町山陰丙1525番地1 |
|---|---|
| 棟数 | 1棟 |
| 学校区 | |
| 建築年度 | H14 |
| 間取り | 1LDK |
| ガス | プロパンガス |
| 給湯 | 3点給湯 |
| 構造 | 木造平屋建 |
| 備考 | 単身のみ住宅 窓口:不動産パートナー 0982-60-2360 |