市営住宅|美砂住宅
2024年5月14日(火)| 所在地 | 〒883-0022 日向市大字平岩10790番地1 |
|---|---|
| 棟数 | 8棟 |
| 学校区 | 平岩小中学校 |
| 建築年度 | H2~H4 |
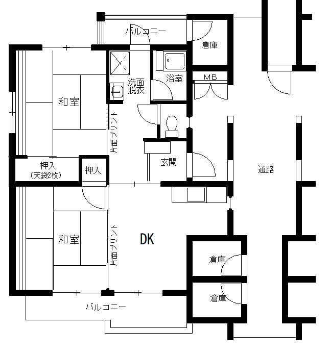
| 間取り | 3DK 2LDK 2DK |
| ガス | プロパンガス |
| 給湯 | 無 |
| 構造 | 中層耐火3階建・中層耐火4階建 |
| 備考 | 一般・障がい者向け・高齢者向け・単身可あり 窓口:chouchou不動産 0982-60-4189 |
| 所在地 | 〒883-0022 日向市大字平岩10790番地1 |
|---|---|
| 棟数 | 8棟 |
| 学校区 | 平岩小中学校 |
| 建築年度 | H2~H4 |
| 間取り | 3DK 2LDK 2DK |
| ガス | プロパンガス |
| 給湯 | 無 |
| 構造 | 中層耐火3階建・中層耐火4階建 |
| 備考 | 一般・障がい者向け・高齢者向け・単身可あり 窓口:chouchou不動産 0982-60-4189 |